English
Italiano
395,000 €

Independent warehouse with elevator and private outdoor area

Hut for sale • Arcisate - via Maja, 10
Arcisate (VA):
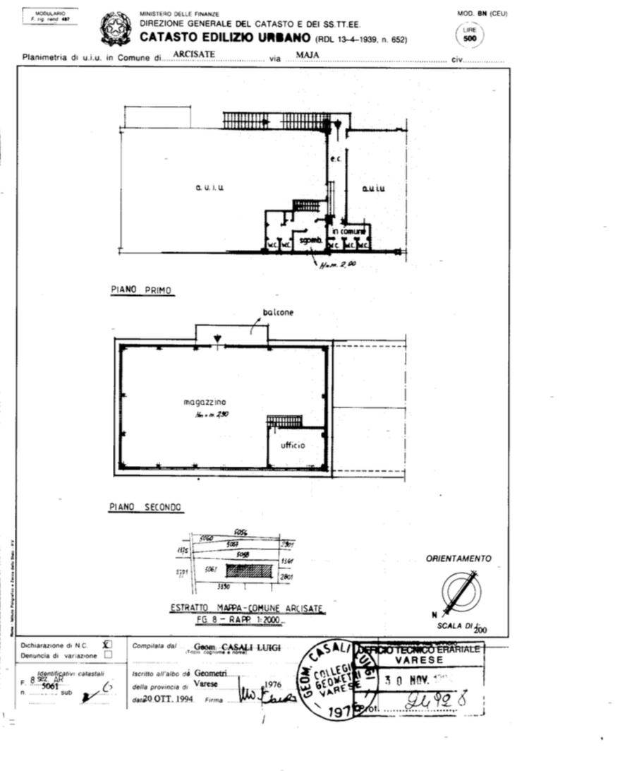
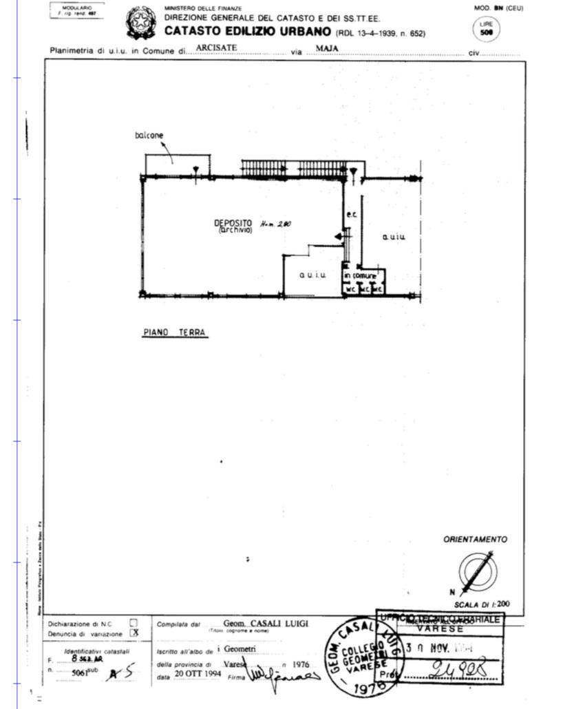
In a strategic industrial area, we offer a spacious three-level warehouse served by an elevator and free on all four sides.
The property features a large outdoor area for parking or work vehicles, two adjoining garages, and multiple access points on the front and sides.
On the mezzanine floor, there is a bright, panoramic office, perfect as a management area. Each floor is equipped with restrooms.
Fully fenced and secure property.
An ideal location for those seeking visibility, independence, and quick connections to Switzerland, Varese, and major nearby cities.
Price: €395,000 – Ref. V142
Energy Performance Certificate: under evaluation
Primal Features
Code
V142
City
Arcisate
Category
Hut
Price
395,000 €
Locals
6
Sqm
1000
Garages
2
Car places
10
Energetic class
Under evaluation
Property Conditions
Fair Conditions
Rank
Medium
Position
Suburb
View
Open View
Orientation
North East
Free Sides
4
Fixtures
Metal
Doors
Discreet
Destination
Industrial

Accessories: Elevator, Passing Car

Map
via Maja 10, Arcisate (VA)
Video
Share on
Cookie preference