Italiano
English
163.000 €

Intero edificio da ristrutturare

Rustico/Casale in vendita • Capiago Intimiano - via Umberto I, 3
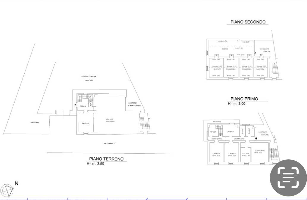
Capiago Intimiano (CO): In posizione strategica nel cuore del paese, comodo ai collegamenti verso Como città, proponiamo intero edificio terra-cielo disposto su più livelli e caratterizzato da un grande potenziale di trasformazione. L'immobile si sviluppa come segue: il piano terra dispone di spazi ad uso commerciale e residenziale, con accessi diretti dalla corte e dalla strada; il piano primo è interamente ad uso residenziale e si compone di ambienti ampi da riplasmare secondo le proprie esigenze; il piano secondo (sottotetto) con altezze interessanti e ottima esposizione è perfetto per creare ambienti luminosi o soluzioni moderne come loft o mansarde per ulteriore superficie abitativa o pertinenziale. Completano la proprietà due posti auto nella corte; è da considerare la possibilità di ricavare autorimesse (box) all’interno della struttura esistente. L’edificio richiede una radicale ristrutturazione, ma si presta perfettamente per la realizzazione di più unità abitative, ideale per famiglie, piccoli investitori o imprese del settore. Ottima opportunità anche per chi cerca una soluzione abitativa con annesso spazio commerciale. Un progetto di riqualificazione con grandi prospettive in una zona ben servita e con elevata richiesta.
Attestazione Prestazione Energetica “E” 690,35 kWh/m2a (area commerciale). Prezzo € 163.000,00 Rif. V158
Caratteristiche principali
Codice
V 158
Città
Capiago Intimiano
Categoria
Rustico/Casale
Prezzo
163.000 €
Locali
11
Bagni
3
Mq
317
Balconi
1
Classe energetica
E
690,35 kWh/m²a
Stato Immobile
Da Ristrutturare
Grado
Medio
Posizione
Centro Storico
Panorama
Vista Aperta
Orientamento
Est Sud Ovest
Lati Liberi
3
Giardino
No
Arredi
Non Arredato
Tipo Soggiorno
Doppio
Tipo Cucina
Abitabile
Riscaldamento
Autonomo
Tipo Riscaldam.
Caldaia
Tipo Impianto
Radiatori
Fonte Energetica
Metano
Acqua Calda
Autonoma
Infissi
Legno
Serramenti
Da Sostituire
Persiana
Tapparella PVC
Pavim. Giorno
Graniglia
Pavim. Notte
Graniglia
Pavim. Cucina
Graniglia
Pavim. Bagno
Ceramica
Accesso Disabili
No

Accessori: Camino, Cancello Elettrico, Lavanderia, Locale Fumatori, Passaggio Automobilistico, Passaggio Pedonale, Ripostiglio

Mappa
via Umberto I 3, Capiago Intimiano (CO)
Video
Condividi su
Cookie preference